Группа Компаний «РУСЬ»

Проект дома Юнгерс

Проект дома Юнгерс

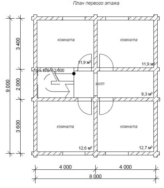
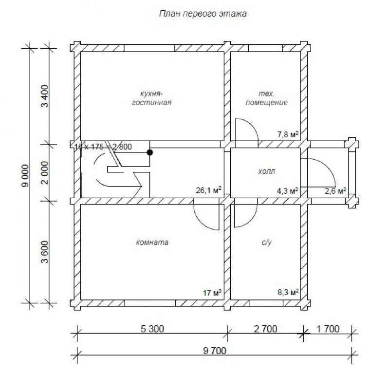
1 этаж 2этаж
Общая площадь

147.4 м2

Размеры дома

9,7х9

Этажей

2

Рассчитать проект Хочу изменить
планировку


Комплектация
Просторный двухэтажный дом из бруса камерной сушки. Большие окна в доме на первом этаже, хорошо освещают помещения. На втором этаже четыре просторные спальни для большой семьи, друзей и гостей. Удобная территория, дом для всех, много пространства и свободы. .

Собственное производство

Собственный склад и логистика

Бесплатный проект и перепланировка

Бесплатная оптимизированная смета


Поэтапная оплата и стоимость фиксируется в договоре

Качественный кировский лес

Надежные современные технологии в российских условиях

Опытные бригады от 15 лет


ГРУППА КОМПАНИЙ «РУСЬ».
Мы используем файлы cookie и системы аналитики для улучшения работы сайта