Группа Компаний «РУСЬ»

Проект дома Горбатов

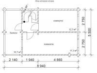
Проект дома Горбатов

1 этаж 2 этаж
Общая площадь

98,34 м2

Размеры дома

8,94х5,5

Этажей

2

Рассчитать проект Хочу изменить
планировку


Комплектация
Прекрасный гостевой Дом-баня из бруса камерной сушки, снабженный просторной комнатой отдыха на первом этаже, где можно устраивать дружеские посиделки, вместительным холлом и теплым тамбуром и двумя комнатами на втором этаже с выходом на балкон.

Собственное производство

Собственный склад и логистика

Бесплатный проект и перепланировка

Бесплатная оптимизированная смета


Поэтапная оплата и стоимость фиксируется в договоре

Качественный кировский лес

Надежные современные технологии в российских условиях

Опытные бригады от 15 лет


ГРУППА КОМПАНИЙ «РУСЬ».
Мы используем файлы cookie и системы аналитики для улучшения работы сайта