Группа Компаний «РУСЬ»

Проект дома Ушаково

Проект дома Ушаково

Общая площадь

168 м2

Этажей

2

Рассчитать проект Хочу изменить
планировку


Комплектация
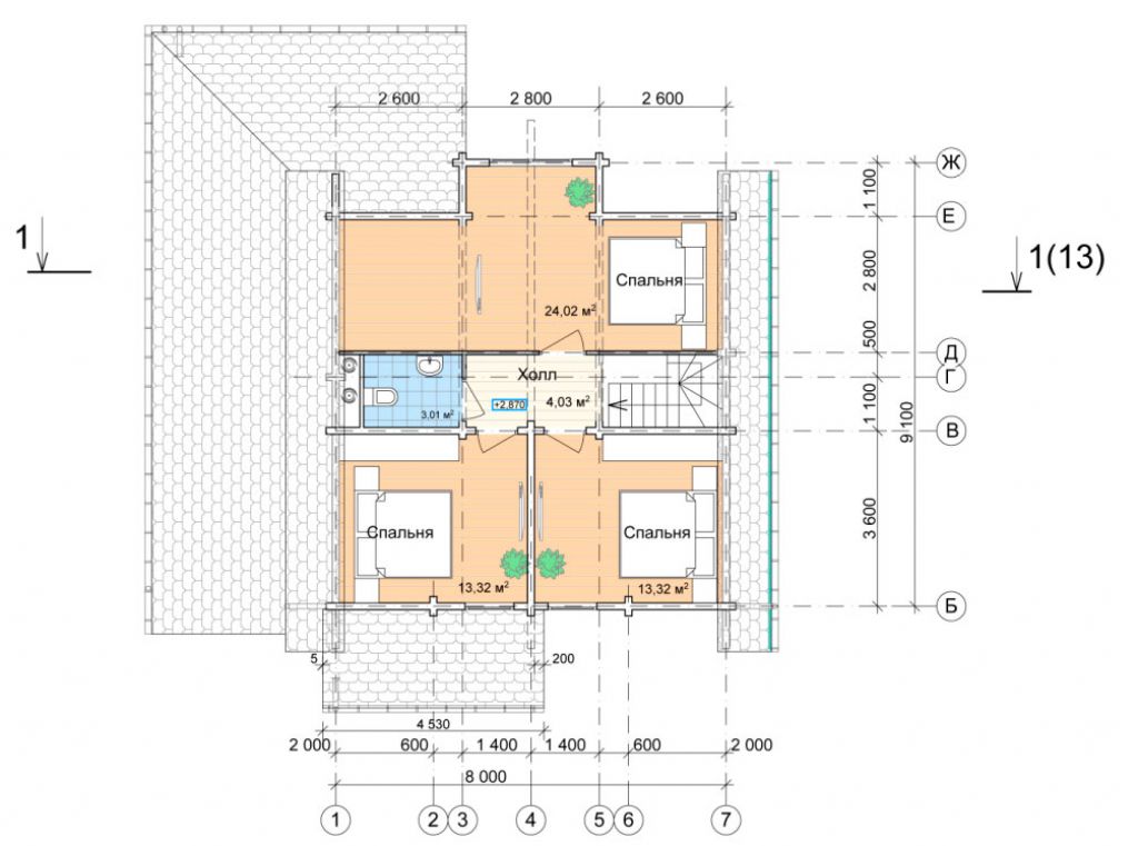
Очень просторный двухэтажный дом из бруса с террасой и навесом для машины. Множество окон в доме на первом этаже, хорошо освещают помещение. На втором этаже три просторные спальни для большой семьи, друзей и гостей. Удобная территория, дом для всех, много пространства и свободы .

Собственное производство

Собственный склад и логистика

Бесплатный проект и перепланировка

Бесплатная оптимизированная смета


Поэтапная оплата и стоимость фиксируется в договоре

Качественный кировский лес

Надежные современные технологии в российских условиях

Опытные бригады от 15 лет


ГРУППА КОМПАНИЙ «РУСЬ».
Мы используем файлы cookie и системы аналитики для улучшения работы сайта