Группа Компаний «РУСЬ»

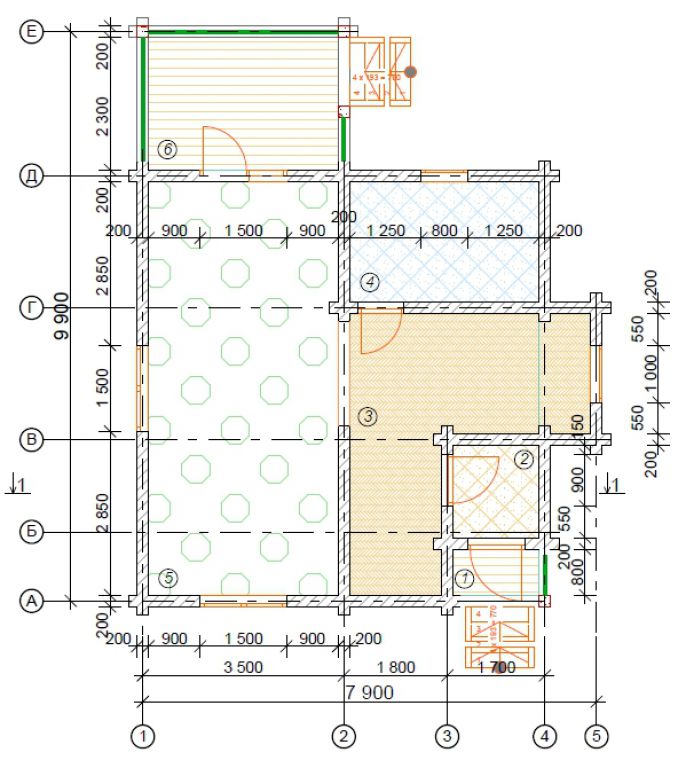
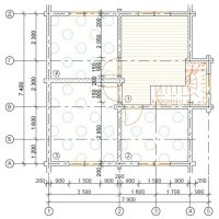
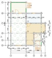
Проект дома Соболь

Проект дома Соболь

2 этаж
Общая площадь

100 м2

Размеры дома

9,9х7,9

Этажей

2

Рассчитать проект Хочу изменить
планировку


Комплектация
Небольшой уютный дом с аккуратной и симпатичной архитектурой, располагает к круглогодичному проживанию или сезонному пребыванию.

Собственное производство

Собственный склад и логистика

Бесплатный проект и перепланировка

Бесплатная оптимизированная смета


Поэтапная оплата и стоимость фиксируется в договоре

Качественный кировский лес

Надежные современные технологии в российских условиях

Опытные бригады от 15 лет


ГРУППА КОМПАНИЙ «РУСЬ».
Мы используем файлы cookie и системы аналитики для улучшения работы сайта