Группа Компаний «РУСЬ»

Проект дома Дмитриево

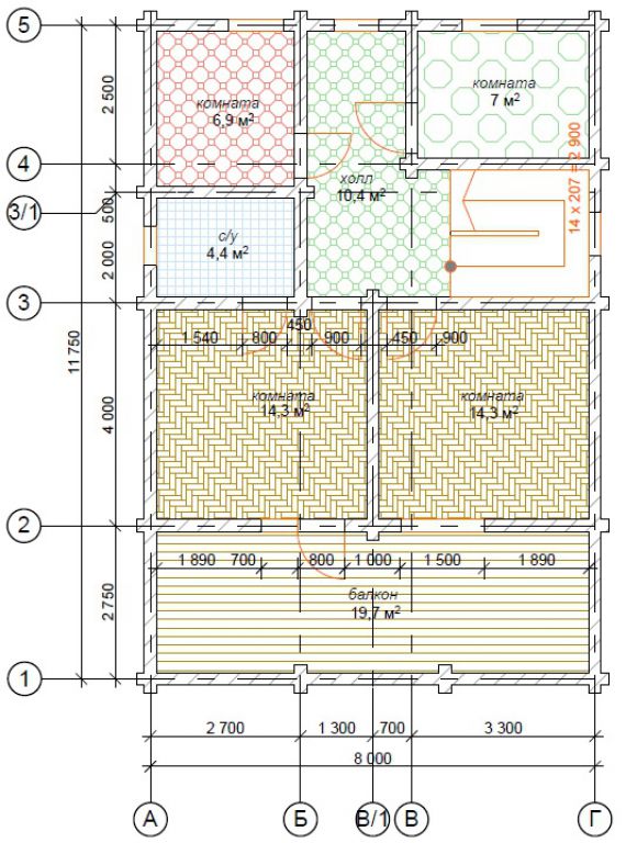
Проект дома Дмитриево

1 этаж 2 этаж
Общая площадь

160 м2

Этажей

2

Рассчитать проект Хочу изменить
планировку


Комплектация
Загородный дом из оцилиндрованного бревна, предлагающий высокий уровень комфорта. Подойдёт большой и дружной семье, любящей комфорт и активный отдых и всегда готовой к неожиданному наплыву гостей, благо место, где их принять и разместить, всегда найдётся.

Собственное производство

Собственный склад и логистика

Бесплатный проект и перепланировка

Бесплатная оптимизированная смета


Поэтапная оплата и стоимость фиксируется в договоре

Качественный кировский лес

Надежные современные технологии в российских условиях

Опытные бригады от 15 лет


ГРУППА КОМПАНИЙ «РУСЬ».
Мы используем файлы cookie и системы аналитики для улучшения работы сайта