Группа Компаний «РУСЬ»

Проект дома Новгород

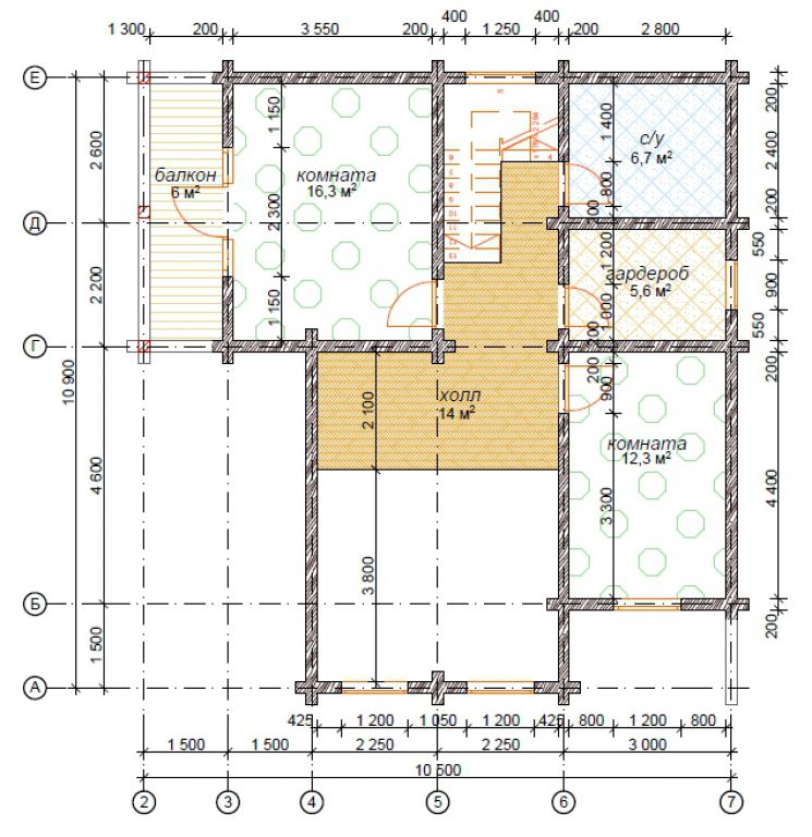
Проект дома Новгород

1 этаж 2 этаж
Общая площадь

204 м2

Этажей

2

Рассчитать проект Хочу изменить
планировку


Комплектация
Индивидуальный коттедж со вторым светом с бассейном, парной, террасой, балконом для большой семьи и круглогодичного проживания отвечающий всем требованиям современного хозяина и его семьи.

Собственное производство

Собственный склад и логистика

Бесплатный проект и перепланировка

Бесплатная оптимизированная смета


Поэтапная оплата и стоимость фиксируется в договоре

Качественный кировский лес

Надежные современные технологии в российских условиях

Опытные бригады от 15 лет


ГРУППА КОМПАНИЙ «РУСЬ».
Мы используем файлы cookie и системы аналитики для улучшения работы сайта