Группа Компаний «РУСЬ»

Проект дома Слобода

Проект дома Слобода

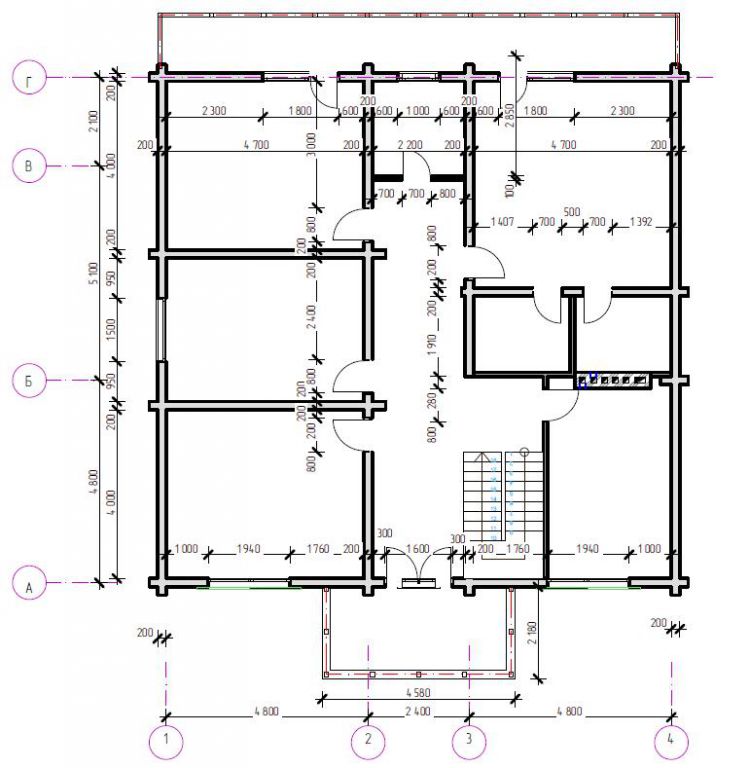
Общая площадь

280 м2

Этажей

2

Рассчитать проект Хочу изменить
планировку


Комплектация
Комбинированный коттедж современной архитектуры. Первый этаж для свободной планировки, выполненный из блоков, подразумевает расположение гостиной, кухни-столовой, санузлов и технических помещений. Второй этаж предназначен для спален и выполнен из экологически чистого клееного бруса для здорового сна и отдыха.

Собственное производство

Собственный склад и логистика

Бесплатный проект и перепланировка

Бесплатная оптимизированная смета


Поэтапная оплата и стоимость фиксируется в договоре

Качественный кировский лес

Надежные современные технологии в российских условиях

Опытные бригады от 15 лет


ГРУППА КОМПАНИЙ «РУСЬ».
Мы используем файлы cookie и системы аналитики для улучшения работы сайта