Группа Компаний «РУСЬ»

ПРОЕКТ ДОМА МАЙДАН

ПРОЕКТ ДОМА МАЙДАН

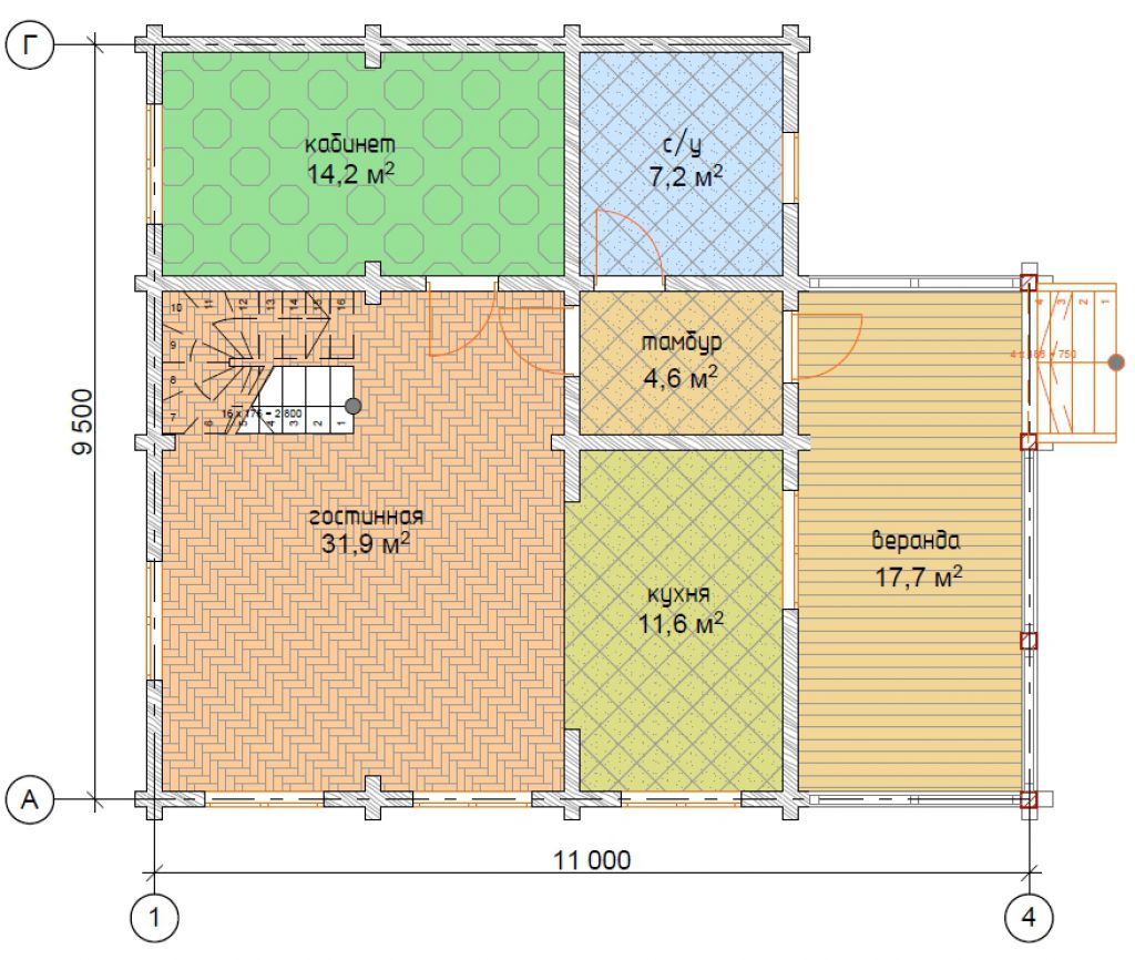
Общая площадь

159 м2

Этажей

2

Рассчитать проект Хочу изменить
планировку


Комплектация
Популярный проект дома из профилированного бруса камерной сушки. В просторной светлой гостиной с большими окнами располагается элегантный камин. Гармоничные фасады, компактное пятно застройки. Дом имеет большую кухню, что дополняет его упомянутые преимущества.

Собственное производство

Собственный склад и логистика

Бесплатный проект и перепланировка

Бесплатная оптимизированная смета


Поэтапная оплата и стоимость фиксируется в договоре

Качественный кировский лес

Надежные современные технологии в российских условиях

Опытные бригады от 15 лет


ГРУППА КОМПАНИЙ «РУСЬ».
Мы используем файлы cookie и системы аналитики для улучшения работы сайта