Группа Компаний «РУСЬ»

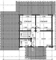
Проект дома Полина

Проект дома Полина

Общая площадь

173.6 м2

Этажей

2

Рассчитать проект Хочу изменить
планировку


Комплектация
Сделать жизнь в загородном доме максимально уютной и комфортной, наполнив ее свежим воздухом и солнечным светом, - в этом состоит идея данного проекта..

Собственное производство

Собственный склад и логистика

Бесплатный проект и перепланировка

Бесплатная оптимизированная смета


Поэтапная оплата и стоимость фиксируется в договоре

Качественный кировский лес

Надежные современные технологии в российских условиях

Опытные бригады от 15 лет


ГРУППА КОМПАНИЙ «РУСЬ».
Мы используем файлы cookie и системы аналитики для улучшения работы сайта