Группа Компаний «РУСЬ»

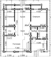
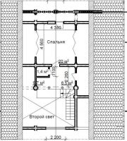
Проект дома Харизма

Проект дома Харизма

Общая площадь

174.1 м2

Этажей

2

Рассчитать проект Хочу изменить
планировку


Комплектация
Каждая деталь в планировке этого дома продумана до мелочей. Здесь все сделано для максимального комфортного загородного отдыха.

Собственное производство

Собственный склад и логистика

Бесплатный проект и перепланировка

Бесплатная оптимизированная смета


Поэтапная оплата и стоимость фиксируется в договоре

Качественный кировский лес

Надежные современные технологии в российских условиях

Опытные бригады от 15 лет


ГРУППА КОМПАНИЙ «РУСЬ».
Мы используем файлы cookie и системы аналитики для улучшения работы сайта