Группа Компаний «РУСЬ»

Проект дома Норд

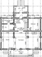
Проект дома Норд

Общая площадь

181.7 м2

Этажей

2

Рассчитать проект Хочу изменить
планировку


Комплектация
Элегантный, устремленный ввысь коттедж станет украшением любого загородного участка. Огромные окна на главном фасаде, превращают дом в естественную часть ландшафта не только снаружи, но и изнутри.

Собственное производство

Собственный склад и логистика

Бесплатный проект и перепланировка

Бесплатная оптимизированная смета


Поэтапная оплата и стоимость фиксируется в договоре

Качественный кировский лес

Надежные современные технологии в российских условиях

Опытные бригады от 15 лет


ГРУППА КОМПАНИЙ «РУСЬ».
Мы используем файлы cookie и системы аналитики для улучшения работы сайта