Группа Компаний «РУСЬ»

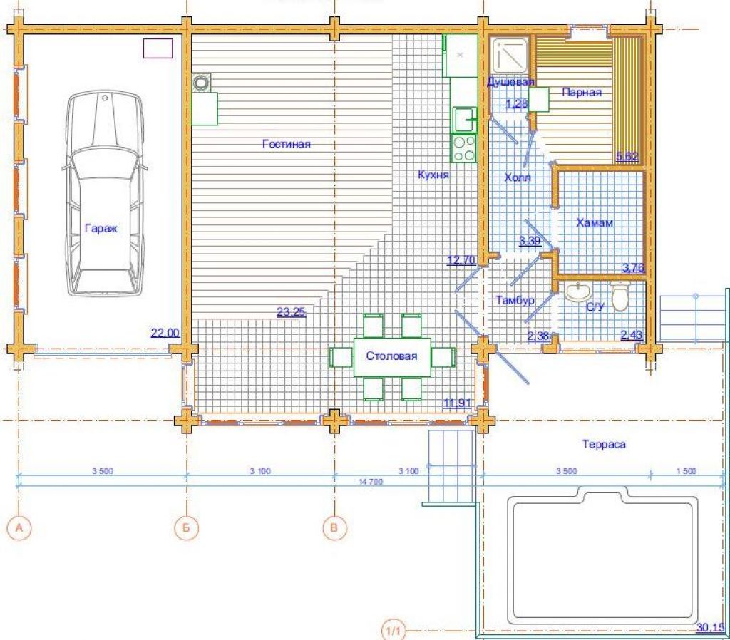
Проект бани Артемида

Проект бани Артемида

Общая площадь

118 м2

Этажей

1

Рассчитать проект Хочу изменить
планировку


Комплектация
 

Собственное производство

Собственный склад и логистика

Бесплатный проект и перепланировка

Бесплатная оптимизированная смета


Поэтапная оплата и стоимость фиксируется в договоре

Качественный кировский лес

Надежные современные технологии в российских условиях

Опытные бригады от 15 лет


ГРУППА КОМПАНИЙ «РУСЬ».
Мы используем файлы cookie и системы аналитики для улучшения работы сайта