Группа Компаний «РУСЬ»

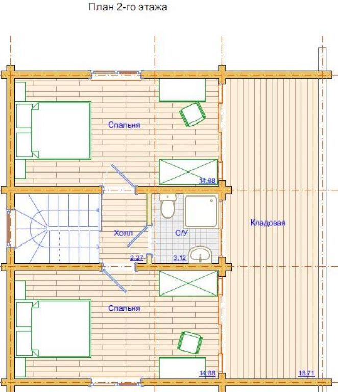
Проект дома Дубёнки

Проект дома Дубёнки

Общая площадь

111,86 м2

Этажей

2

Рассчитать проект Хочу изменить
планировку


Комплектация

Собственное производство

Собственный склад и логистика

Бесплатный проект и перепланировка

Бесплатная оптимизированная смета


Поэтапная оплата и стоимость фиксируется в договоре

Качественный кировский лес

Надежные современные технологии в российских условиях

Опытные бригады от 15 лет


ГРУППА КОМПАНИЙ «РУСЬ».
Мы используем файлы cookie и системы аналитики для улучшения работы сайта