Группа Компаний «РУСЬ»

Проект дома Тайга

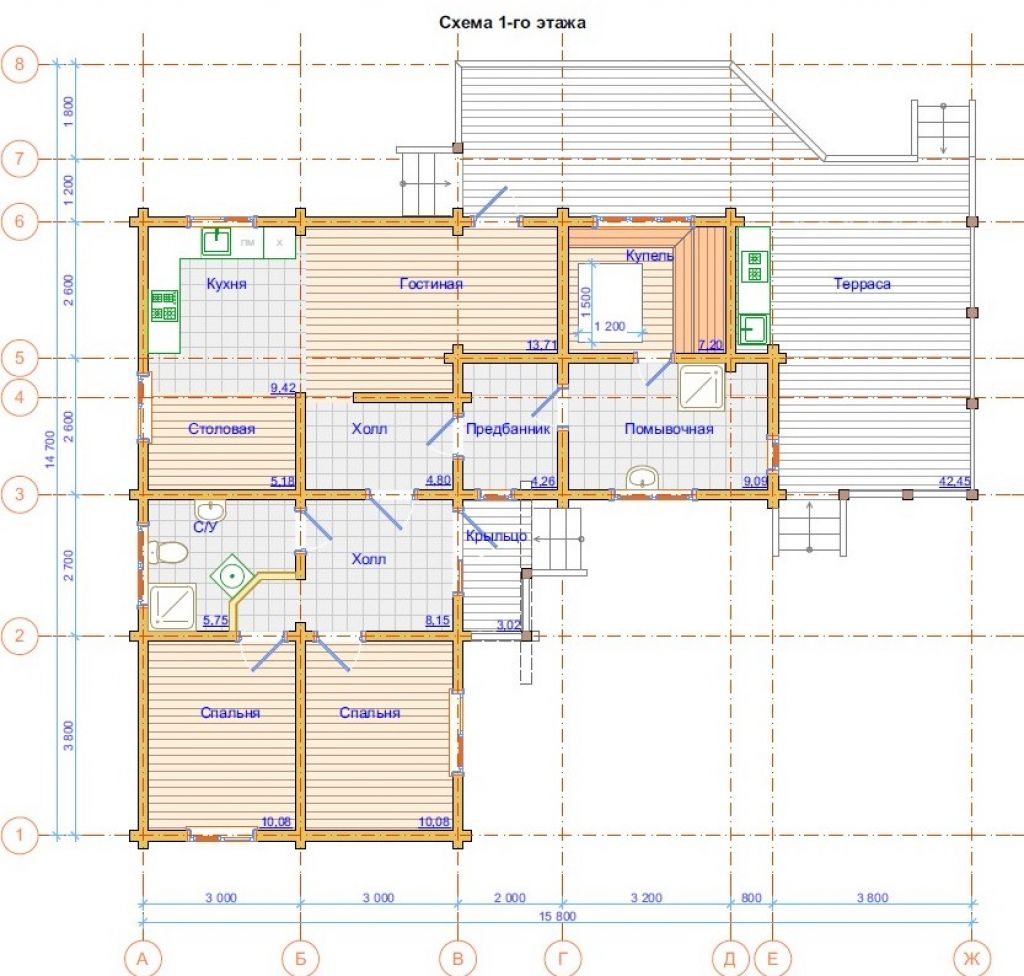
Проект дома Тайга

1 этаж
Общая площадь

133,76 м2

Размеры дома

15,8х14,7

Этажей

1

Рассчитать проект Хочу изменить
планировку


Комплектация

Собственное производство

Собственный склад и логистика

Бесплатный проект и перепланировка

Бесплатная оптимизированная смета


Поэтапная оплата и стоимость фиксируется в договоре

Качественный кировский лес

Надежные современные технологии в российских условиях

Опытные бригады от 15 лет


ГРУППА КОМПАНИЙ «РУСЬ».
Мы используем файлы cookie и системы аналитики для улучшения работы сайта