Группа Компаний «РУСЬ»

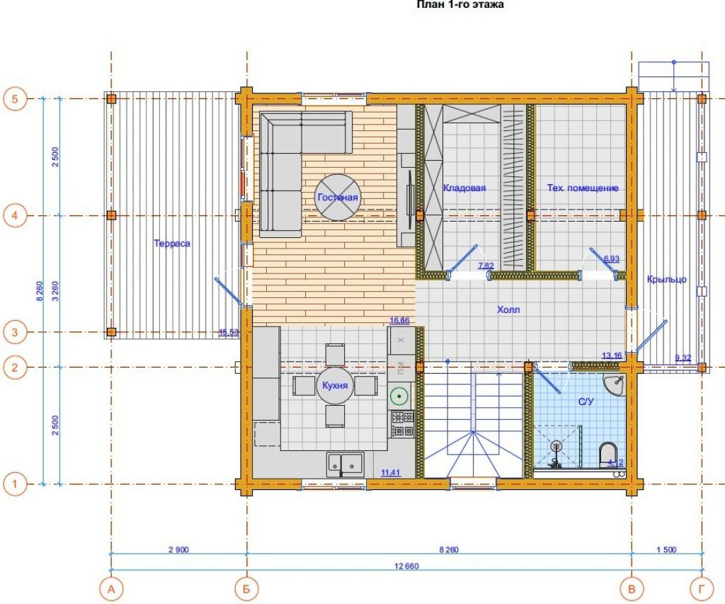
Проект дома Поднебесный

Проект дома Поднебесный

1 эташ 2 эташ
Общая площадь

148,01 м2

Размеры дома

12,66х8,26

Этажей

2

Рассчитать проект Хочу изменить
планировку


Комплектация
 

Собственное производство

Собственный склад и логистика

Бесплатный проект и перепланировка

Бесплатная оптимизированная смета


Поэтапная оплата и стоимость фиксируется в договоре

Качественный кировский лес

Надежные современные технологии в российских условиях

Опытные бригады от 15 лет


ГРУППА КОМПАНИЙ «РУСЬ».
Мы используем файлы cookie и системы аналитики для улучшения работы сайта