Базовая
Если вы планирует поэтапное строительство дома, то эта комплектация для вас. Весь конструкционный силовой каркас стен с черновой обшивкой, перекрытиями и кровлей с покрытием.
От 1 476 800 Руб.
Каркасная
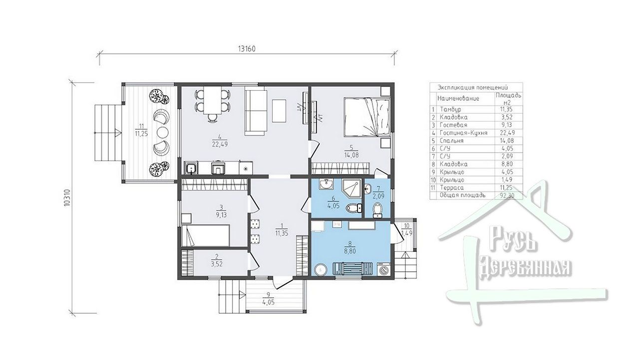
92,3 м2
10,31 х 13,16
1
Базовая
Если вы планирует поэтапное строительство дома, то эта комплектация для вас. Весь конструкционный силовой каркас стен с черновой обшивкой, перекрытиями и кровлей с покрытием.
Стандарт
Готовый загородный дом сезонного проживания и временного пребывания зимой. С обшивкой имитацией стен снаружи, утепленными полами и потолками, окнами и дверью.
Комфорт
Полноценный жилой дом для круглогодичного проживания!
| Варианты комплектации: | Базовая | Стандарт | Комфорт |
| Подготовительные работы (выезд прораба на участок) |
![]() |
![]() |
![]() |
| Высота -1этаж-2,5, 2этаж-2,5 |
![]() |
![]() |
![]() |
| Пиломатериал ест.вл |
![]() |
![]() |
сухой |
| Каркас наружных стен -50х150 мм, шаг 590 мм с усилением |
![]() |
![]() |
![]() |
| Каркас перегородок -50х100 мм, шаг 590 мм с усилением |
![]() |
![]() |
![]() |
| Лаги пола, перекрытий, стропила -50*150 мм, шаг 590 мм |
![]() |
![]() |
50*200 |
| Контробрешетка -брусок 25х50 мм, шаг 590 мм |
![]() |
![]() |
![]() |
| Наружная отделка | OSB-9мм | им-ция бруса | им-ция бруса c покраской |
| Кровля-металлочерепица |
![]() |
![]() |
![]() |
| Карнизы |
![]() |
им-ция бруса | софиты |
| Водосточная система |
![]() |
![]() |
![]() |
| Внутренняя отделка-евровагонка |
![]() |
![]() |
![]() |
| Покрытие пола-обрезная доска 25х100 мм |
![]() |
![]() |
ЦСП 10 |
| Потолки-обрезная доска 25х100мм с шагом 300мм |
![]() |
![]() |
![]() |
| Утепление полов, стен, кровли |
![]() |
150 | 200 |
| Окна ПВХ с однокамерным стеклопакетом 1,0х1,2 м |
![]() |
![]() |
двухкамерный |
| Дверь входная-Металл, пр-во Россия |
![]() |
![]() |
![]() |
| Лестница |
![]() |
времен ная |
по проекту |
| Паропроницаемая мембрана |
![]() |
![]() |
![]() |
| Антисептирование лаг, обвязки, чернового пола |
![]() |
![]() |
![]() |
| Цена руб. | 1 476 800 | 2 584 400 | 2 953 600 |
Забивные ЖБ сваи
150х150Х3000 мм с обвязкой антисептированным брусом;
Электрика
Разводка кабелей в ПВХ гофре. Распределительный щит.
Отопление, водоснабжение, канализация
Разводка по дому труб водоснабжения, канализации и отопления с монтажом радиаторов.
Септик
Септик, трубы + работы
Собственное производство
Собственный склад и логистика
Бесплатный проект и перепланировка
Бесплатная оптимизированная смета
Поэтапная оплата и стоимость фиксируется в договоре
Качественный кировский лес
Надежные современные технологии в российских условиях
Опытные бригады от 15 лет