Группа Компаний «РУСЬ»

Проект дома Репин

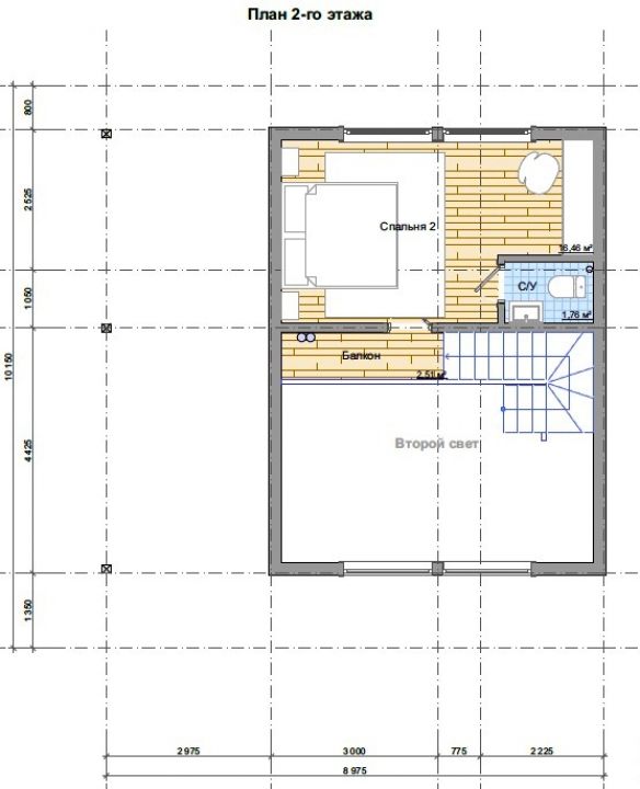
Проект дома Репин

Проект деревянного дома Проект каркасного дома Нижний Новгород Русь Деревянная Проект каркасного дома Нижний Новгород Проект каркасного дома Нижний Новгород Русь Деревянная 1 этаж Проект каркасного дома Нижний Новгород Русь Деревянная 2 этаж
Цена

От 1 800 000 Руб.

Технология

Каркасная

Общая площадь

112,47 м2

Размеры дома

10,15 х 8,98

Этажей

2

Рассчитать проект Хочу изменить
планировку

ипотека
Выгодные предложения
от надежных банков.
Работаем с ЭСКРОУ-счетами !!!

Базовая

Если вы планирует поэтапное строительство дома, то эта комплектация для вас. Весь конструкционный силовой каркас стен с черновой обшивкой, перекрытиями и кровлей с покрытием.

post preview Стандарт

Готовый загородный дом сезонного проживания и временного пребывания зимой. С обшивкой имитацией стен снаружи, утепленными полами и потолками, окнами и дверью.

post preview Комфорт

Полноценный жилой дом для круглогодичного проживания!

Варианты комплектации: Базовая Стандарт Комфорт
Подготовительные работы (выезд прораба на участок)
Высота -1этаж-2,5, 2этаж-2,5
Пиломатериал ест.вл сухой
Каркас наружных стен -50х150 мм, шаг 590 мм с усилением
Каркас перегородок -50х100 мм, шаг 590 мм с усилением
Лаги пола, перекрытий, стропила -50*150 мм, шаг 590 мм 50*200
Контробрешетка -брусок 25х50 мм, шаг 590 мм
Наружная отделка OSB-9мм им-ция бруса им-ция бруса c покраской
Кровля-металлочерепица
Карнизы им-ция бруса софиты
Водосточная система
Внутренняя отделка-евровагонка
Покрытие пола-обрезная доска 25х100 мм ЦСП 10
Потолки-обрезная доска 25х100мм с шагом 300мм
Утепление полов, стен, кровли 150 200
Окна ПВХ с однокамерным стеклопакетом 1,0х1,2 м двухкамерный
Дверь входная-Металл, пр-во Россия
Лестница времен
ная
по проекту
Паропроницаемая мембрана
Антисептирование лаг, обвязки, чернового пола
Цена руб. 1 800 000 3 150 000 3 600 000




Забивные ЖБ сваи

150х150Х3000 мм с обвязкой антисептированным брусом;

от 37 000 руб.
Электрика

Разводка кабелей в ПВХ гофре. Распределительный щит.

от 37 000 руб.

Отопление, водоснабжение, канализация

Разводка по дому труб водоснабжения, канализации и отопления с монтажом радиаторов.

от 141 000 руб.
Септик

Септик, трубы + работы

от 71 000 руб.

Собственное производство

Собственный склад и логистика

Бесплатный проект и перепланировка

Бесплатная оптимизированная смета


Поэтапная оплата и стоимость фиксируется в договоре

Качественный кировский лес

Надежные современные технологии в российских условиях

Опытные бригады от 15 лет


ГРУППА КОМПАНИЙ «РУСЬ».
Мы используем файлы cookie и системы аналитики для улучшения работы сайта