Группа Компаний «РУСЬ»

Проект дома Перун

Проект дома Перун

Проект деревянного дома Проект деревянного дома Проект дома Перун Проект деревянного дома Проект деревянного дома Проект дома Перун Проект деревянного дома Проект дома Перун 2эт
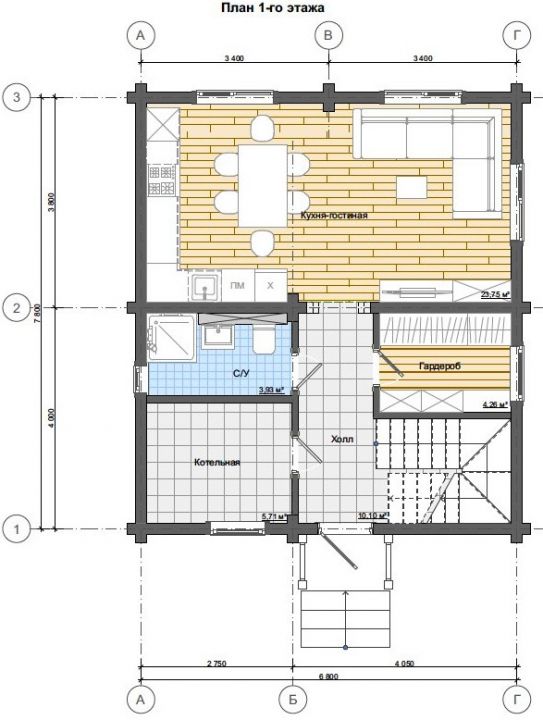
Общая площадь

91,14 м2

Размеры дома

7,8х6,8

Этажей

2

Рассчитать проект Хочу изменить
планировку

Комплектация

Собственное производство

Собственный склад и логистика

Бесплатный проект и перепланировка

Бесплатная оптимизированная смета


Поэтапная оплата и стоимость фиксируется в договоре

Качественный кировский лес

Надежные современные технологии в российских условиях

Опытные бригады от 15 лет


ГРУППА КОМПАНИЙ «РУСЬ».
Мы используем файлы cookie и системы аналитики для улучшения работы сайта