Группа Компаний «РУСЬ»

Проект дома Талия

Проект дома Талия

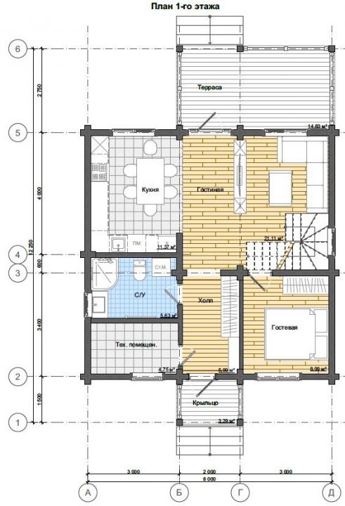
Проект деревянного дома Проект деревянного дома Нижний Новгород план 1 эташ план 2 этаж
Общая площадь

127,78 м2

Размеры дома

12,25х8

Этажей

1

Рассчитать проект Хочу изменить
планировку

Комплектация

Собственное производство

Собственный склад и логистика

Бесплатный проект и перепланировка

Бесплатная оптимизированная смета


Поэтапная оплата и стоимость фиксируется в договоре

Качественный кировский лес

Надежные современные технологии в российских условиях

Опытные бригады от 15 лет


ГРУППА КОМПАНИЙ «РУСЬ».
Мы используем файлы cookie и системы аналитики для улучшения работы сайта