Группа Компаний «РУСЬ»

Проект дома Русь

Проект дома Русь

Общая площадь

126 м2

Размеры дома

8,73х8,5

Этажей

2

Рассчитать проект Хочу изменить
планировку


Комплектация
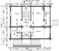
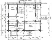
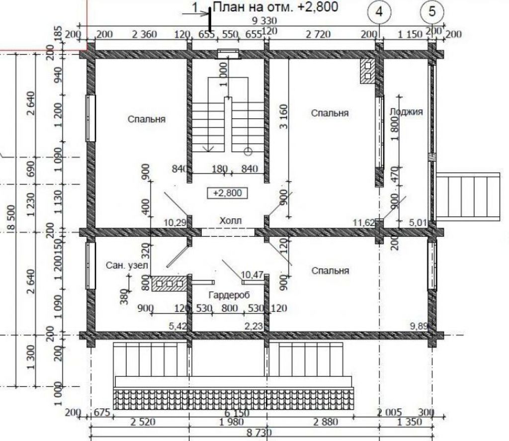
Классика во всей своей красоте и функциональности с верандой, лоджией и двумя входами. На первом этаже гостиная, кухня-столовая, котельная, санузел и кабинет. На втором три спальни и дополнительный санузел.

Собственное производство

Собственный склад и логистика

Бесплатный проект и перепланировка

Бесплатная оптимизированная смета


Поэтапная оплата и стоимость фиксируется в договоре

Качественный кировский лес

Надежные современные технологии в российских условиях

Опытные бригады от 15 лет


ГРУППА КОМПАНИЙ «РУСЬ».
Мы используем файлы cookie и системы аналитики для улучшения работы сайта